HİZMET VER
Armut
Mimarlık Özel Ders
İstanbul
Pendik
Anse Architecture Design
Mimarlık Özel Ders
·
7 yıldır üye
İstanbul
Pendik
BAŞLA
Müşterilerinin Yorumları
Yorumları görmek için teklif alın.
Güvenlik Kontrolleri
Geçerli Cep Telefonu
Kuruluş / İşe Başlama Yılı
2016
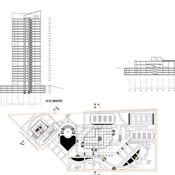
Karma kullanım, toplu konut, otel projesi, pazar alanı, kütüphane gibi bir çok öğrenci projesi yaptık ve yüksek notlarla sonuçlandırdık.Yetişmeyen proje dersleriniz için yardım edilir, özel ders verilir. Güvenli iletişim için yüzyüze görüşebiliriz. Görseldeki teslim paftaları bize aittir.
X
Müsait Hizmet Verenlerden 4 Mimarlık Özel Ders Fiyat Teklifi Al, Karşılaştır.
689 Mimarlık Özel Ders Öğretmeni hizmet vermeye hazır.
BAŞLA
Teklif al >
4 Mimarlık Özel Ders Fiyat Teklifi Al