HİZMET VER
Armut
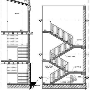
Plan Kesit Görünüş Çizimi
Bursa
Mudanya
Çağla Deniz Kurt
Plan Kesit Görünüş Çizimi
·
1 yıldır üye
Bursa
Mudanya
BAŞLA
Müşterilerinin Yorumları
Yorumları görmek için teklif alın.
Güvenlik Kontrolleri
Geçerli Cep Telefonu
Mimar pozisyonu için başvuruda bulunmak istiyorum. Mimarlık konusunda büyük bir ilgi ve tutkuya sahibim ve bu alanda kendimi geliştirmek, şirketinizde katkı sağlamak istiyorum. FMV Işık Üniversitesi Mimarlık Fakültesi'nden onur öğrencisi olarak mezun oldum ve öğrenciliğim boyunca LİK Yapı,Sözüneri Mimarlık ve Kartopu İnşaat gibi firmalarda deneyim kazandım. Şirketinizin vizyonu ve hedefleri doğrultusunda, yaratıcı ve çözüm odaklı bir yaklaşım benimseyerek katkı sağlamayı hedefliyorum. Bu pozisyonda sizinle çalışma fırsatını dört gözle bekliyorum.
X
Müsait Hizmet Verenlerden 4 Plan Kesit Görünüş Çizimi Fiyat Teklifi Al, Karşılaştır.
896 Plan Kesit Görünüş Çizim Uzmanı hizmet vermeye hazır.
BAŞLA
Teklif al >
4 Plan Kesit Görünüş Çizimi Fiyat Teklifi Al