HİZMET VER
Armut
CAD Çizim
İstanbul
Şişli
Cansu Karagöz
CAD Çizim
·
1 yıldır üye
İstanbul
Şişli
BAŞLA
Müşterilerinin Yorumları
Yorumları görmek için teklif alın.
Güvenlik Kontrolleri
Geçerli Cep Telefonu
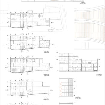
AutoCad Sketchup Photoshop Indesign programları sayesinde birçok yerde staj yaparak projelere yardım ettim.Bu platformda da hem bilgilerimi taze tutmak hem de yardımcı olabilmek adına hizmet vermek amacıyla açmış bulunmaktayım.
X
Müsait Hizmet Verenlerden 4 CAD Çizim Fiyat Teklifi Al, Karşılaştır.
1170 CAD Çizim Uzmanı hizmet vermeye hazır.
BAŞLA
Teklif al >
4 CAD Çizim Fiyat Teklifi Al