HİZMET VER
Armut
3D Bina Modelleme
İstanbul
Güngören
Diyar Karabulak
3D Bina Modelleme
·
10 aydır üye
İstanbul
Güngören
BAŞLA
Müşterilerinin Yorumları
Yorumları görmek için teklif alın.
Güvenlik Kontrolleri
Geçerli Cep Telefonu
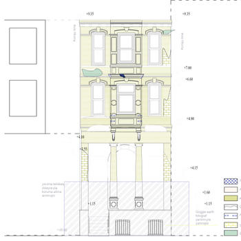
Merhaba, ben Diyar Karabülak, Yıldız Teknik Üniversitesi Mimarlık Bölümü öğrencisiyim. Mimari projelerde AutoCAD, Revit, SketchUp ve Lumion gibi profesyonel yazılımlar kullanarak, plan çizimi, 3D modelleme, render ve iç mekan tasarımı gibi hizmetler sunuyorum. Her projeye özel çözümler üretir, detaylara dikkat ederim. Zamanında teslim garantisiyle, ihtiyaçlarınıza uygun yüksek kaliteli sonuçlar sunmayı hedefliyorum. Projenizi konuşmak ve detayları paylaşmak için mesaj atabilirsiniz.
X
Müsait Hizmet Verenlerden 4 3D Bina Modelleme Fiyat Teklifi Al, Karşılaştır.
1653 3D Bina Modelleme Uzmanı hizmet vermeye hazır.
BAŞLA
Teklif al >
4 3D Bina Modelleme Fiyat Teklifi Al