HİZMET VER
Armut
Teknik Resim Çizimi
Antalya
Serik
Ece EDİM
Teknik Resim Çizimi
·
11 aydır üye
Antalya
Serik
BAŞLA
Müşterilerinin Yorumları
Yorumları görmek için teklif alın.
Güvenlik Kontrolleri
Geçerli Cep Telefonu
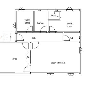
Ben Ece iç mimarlık öğrencisiyim. Autocad, 3ds Max, Revit ve SkecthUp kullanabiliyorum. Üç boyutlu tasarımlar ve mimari, iç mimari modellemeler yapabilirim.
X
Müsait Hizmet Verenlerden 4 Teknik Resim Çizimi Fiyat Teklifi Al, Karşılaştır.
1871 Teknik Ressam hizmet vermeye hazır.
BAŞLA
Teklif al >
4 Teknik Resim Çizimi Fiyat Teklifi Al