HİZMET VER
Armut
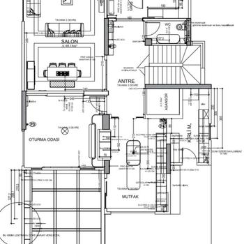
Ev Proje Çizimi
Kayseri
Melikgazi
Ece Kılınçlı
Ev Proje Çizimi
·
1 yıldır üye
Kayseri
Melikgazi
BAŞLA
Müşterilerinin Yorumları
Yorumları görmek için teklif alın.
Güvenlik Kontrolleri
Geçerli Cep Telefonu
İÇ MEKAN TASARIMI BÖLÜMÜNDEN 1. LİKLE MEZUN OLDUM. 8 AYDIR MİMARLIK OFİSİNDE ÇALIŞIYORUM. İÇ MEKAN TASARIMLARI, MOBİLYA TEKNİK ÇİZİMLERİ, ELEKTİRİK VE TESİSAT PLANLARI, İÇ MEKAN İÇİN MALZEME SEÇİMLERİ VE 3 BOYUT MODELLEMELERİ YAPIYORUM.
X
Müsait Hizmet Verenlerden 5 Ev Proje Çizimi Fiyat Teklifi Al, Karşılaştır.
1000 Ev Proje Çizim Uzmanı hizmet vermeye hazır.
BAŞLA
Teklif al >
5 Ev Proje Çizimi Fiyat Teklifi Al