HİZMET VER
Armut
Ev Tasarım
İstanbul
Sarıyer
Gülşah Şatıroğlu Ünal
Ev Tasarım
·
12 aydır üye
İstanbul
Sarıyer
BAŞLA
Müşterilerinin Yorumları
Yorumları görmek için teklif alın.
Güvenlik Kontrolleri
Geçerli Cep Telefonu
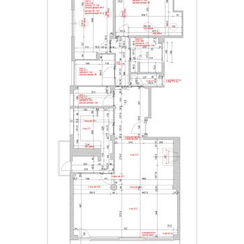
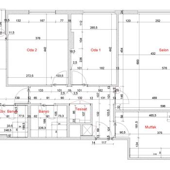
İç mimar olarak konut ve kamusal alanlarda profesyonel rölöve hizmeti sunuyorum. Yerinde ölçü alma ile başlayan süreci, AutoCAD ortamında detaylı mimari çizimlerle tamamlıyorum. İhtiyaca göre plan çizimlerini Photoshop ile görselleştiriyor, isteğe bağlı olarak 3 boyutlu modellemeler ile projeyi daha anlaşılır hale getiriyorum. Hizmetlerim arasında; yerinde ölçüm ve rölöve çizimi, AutoCAD ile mimari plan, kesit ve görünüş çizimi, photoshop ile plan renklendirme ve sunuma uygun hale getirme, üç boyutlu modelleme ile proje görselleştirme yer almaktadır. Profesyonel ve zamanında teslim prensibiyle çalışıyor, her projeye özgü çözümler sunuyorum. İlk görüşme ve keşif hizmetiyle birlikte ihtiyaçlarınızı netleştirip en uygun çözümü sunmaktan memnuniyet duyarım.
X
Müsait Hizmet Verenlerden 4 Ev Tasarım Fiyat Teklifi Al, Karşılaştır.
881 Ev Tasarımcı hizmet vermeye hazır.
BAŞLA
Teklif al >
4 Ev Tasarım Fiyat Teklifi Al