HİZMET VER
Armut
Asansör Montaj
Konya
Selçuklu
Hakan Uçar
Asansör Montaj
·
12 aydır üye
Konya
Selçuklu
BAŞLA
Müşterilerinin Yorumları
Yorumları görmek için teklif alın.
Güvenlik Kontrolleri
Geçersiz Cep Telefonu
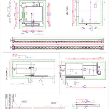
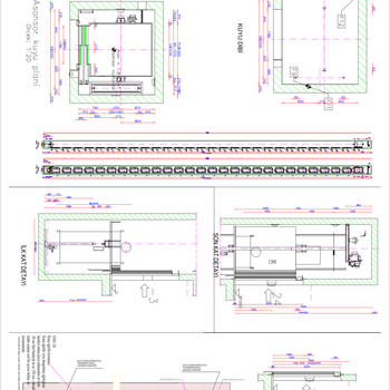
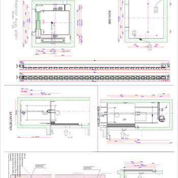
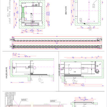
Asansör ile ilgili 10 senelik tecrübeli kadromuz ve mühendislerimizle Türkiyenin her yanına hizmet verebiliriz. Asansör Avan projeleriniz belediyeye onaylatılır standarta uygun bir şekilde çizilir ve montajı yapılır.
X
Müsait Hizmet Verenlerden 3 Asansör Montaj Fiyat Teklifi Al, Karşılaştır.
1607 Asansör Montaj Firması hizmet vermeye hazır.
BAŞLA
Teklif al >
3 Asansör Montaj Fiyat Teklifi Al