HİZMET VER
Armut
Mobilya Teknik Çizim
Kocaeli
Çayırova
Ilkan Kaya
Mobilya Teknik Çizim
·
11 aydır üye
Kocaeli
Çayırova
BAŞLA
Müşterilerinin Yorumları
Yorumları görmek için teklif alın.
Güvenlik Kontrolleri
Geçerli Cep Telefonu
Geçerli Email Address
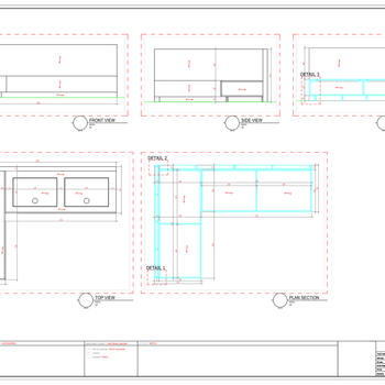
-Plan, görünüş, kesit ve detay çizimlerini proje türüne uygun şekilde, AutoCAD veya Rhinoceros formatında sunuyorum. Mekâna özel çözüm ve üretilebilirlik odaklı çalışıyorum. -CNC üretim ya da marangoz uygulamalarına uygun teknik çizimler hazırlıyorum. Ölçülendirme, malzeme notları ve bağlantı detaylarıyla birlikte teslim edilir. İhtiyaca göre 2D/3D destek sağlanır.
X
Müsait Hizmet Verenlerden 4 Mobilya Teknik Çizim Fiyat Teklifi Al, Karşılaştır.
648 Mobilya Teknik Çizim Uzmanı hizmet vermeye hazır.
BAŞLA
Teklif al >
4 Mobilya Teknik Çizim Fiyat Teklifi Al