HİZMET VER
Armut
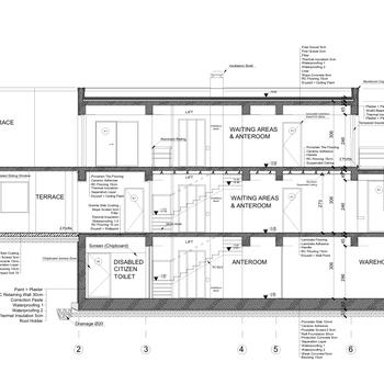
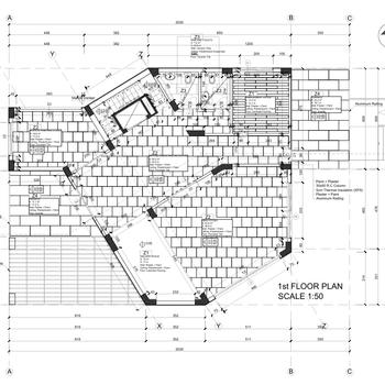
Plan Kesit Görünüş Çizimi
Gaziantep
Şahinbey
Ismail Aslan
Plan Kesit Görünüş Çizimi
·
9 aydır üye
Gaziantep
Şahinbey
BAŞLA
Müşterilerinin Yorumları
Yorumları görmek için teklif alın.
Güvenlik Kontrolleri
Geçerli Cep Telefonu
merhabalar. yıldız teknik üniversitesi mimarlık bölümü mimarlık 3. sınıf öğrencisiyim. bu alanda yeteneklerim dahilinde ufak çaplı elimden geldiği kadar piyasanın içinde olmaya çalışıyorum ve yaptığım işleri özveri ile neşretmeye çalışıyorum.
X
Müsait Hizmet Verenlerden 4 Plan Kesit Görünüş Çizimi Fiyat Teklifi Al, Karşılaştır.
891 Plan Kesit Görünüş Çizim Uzmanı hizmet vermeye hazır.
BAŞLA
Teklif al >
4 Plan Kesit Görünüş Çizimi Fiyat Teklifi Al