HİZMET VER
Armut
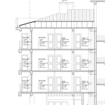
Plan Kesit Görünüş Çizimi
İzmir
Konak
Mimar Nilay
Plan Kesit Görünüş Çizimi
·
4 aydır üye
İzmir
Konak
BAŞLA
Müşterilerinin Yorumları
Yorumları görmek için teklif alın.
Güvenlik Kontrolleri
Geçerli Cep Telefonu
Merhaba, Mimari proje çizimi, 3D modelleme ve render alanlarında hizmet veriyorum. Mimarlık ofisleri ve müteahhitler için fason mimari çizimler, uygulama projeleri ve görselleştirme çalışmaları hazırlıyorum. AutoCAD üzerinden teknik ve uygulanabilir projeler üretir, 3D modelleme ve render sürecinde projeyi doğru ölçü ve gerçekçi malzemelerle sunarım. Teslim sürelerine sadık, iletişimi net ve düzenli bir çalışma anlayışım var.
X
Müsait Hizmet Verenlerden 4 Plan Kesit Görünüş Çizimi Fiyat Teklifi Al, Karşılaştır.
895 Plan Kesit Görünüş Çizim Uzmanı hizmet vermeye hazır.
BAŞLA
Teklif al >
4 Plan Kesit Görünüş Çizimi Fiyat Teklifi Al