HİZMET VER
Armut
3D Bina Modelleme
Kocaeli
Gebze
Muhammed Ali ALPARSLAN
3D Bina Modelleme
·
11 aydır üye
Kocaeli
Gebze
BAŞLA
Müşterilerinin Yorumları
Yorumları görmek için teklif alın.
Güvenlik Kontrolleri
Geçerli Cep Telefonu
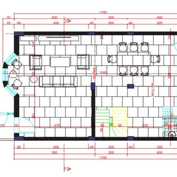
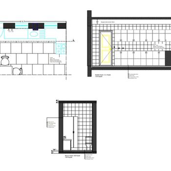
Her türlü kat planı, üniversite proje dersleri için detaylı kesitler, 3 boyutlu 3 ds max ve sketchup projeleri yapılır.
X
Müsait Hizmet Verenlerden 4 3D Bina Modelleme Fiyat Teklifi Al, Karşılaştır.
1653 3D Bina Modelleme Uzmanı hizmet vermeye hazır.
BAŞLA
Teklif al >
4 3D Bina Modelleme Fiyat Teklifi Al