HİZMET VER
Armut
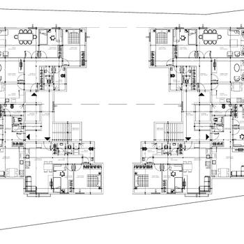
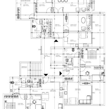
Plan Kesit Görünüş Çizimi
İstanbul
Fatih
MUHAMMET EMİN BAYIR
Plan Kesit Görünüş Çizimi
·
1 aydır üye
İstanbul
Fatih
BAŞLA
Müşterilerinin Yorumları
Yorumları görmek için teklif alın.
Güvenlik Kontrolleri
Mimarlık son sınıf öğrencisiyim ve mimari çizim, plan düzenleme ve 3D modelleme konularında profesyonel destek sağlıyorum. AutoCAD ve Revit kullanarak kat planı çizimi, proje düzenleme, teknik çizim ve 3D modelleme hizmetleri veriyorum. Projelerinizi hızlı, düzenli ve anlaşılır şekilde hazırlayarak ihtiyaçlarınıza uygun çözümler sunarım. Teslim süresine önem verir, müşterilerimle sürekli iletişim halinde çalışırım. Öğrenci projeleri, ruhsat çizimleri, plan düzenlemeleri ve mevcut projelerin dijital ortama aktarılması gibi işlerde yardımcı olabilirim. Uygun fiyat ve kaliteli hizmet için benimle iletişime geçebilirsiniz.
X
Müsait Hizmet Verenlerden 4 Plan Kesit Görünüş Çizimi Fiyat Teklifi Al, Karşılaştır.
884 Plan Kesit Görünüş Çizim Uzmanı hizmet vermeye hazır.
BAŞLA
Teklif al >
4 Plan Kesit Görünüş Çizimi Fiyat Teklifi Al