HİZMET VER
Armut
CAD Çizim
İstanbul
Bağcılar
Racha Mekkari
CAD Çizim
·
3 aydır üye
İstanbul
Bağcılar
BAŞLA
Müşterilerinin Yorumları
Yorumları görmek için teklif alın.
Güvenlik Kontrolleri
Geçerli Cep Telefonu
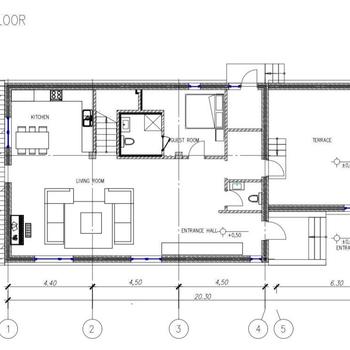
Doğru ve özenli AutoCAD çizim paketleri teslim ediyorum: kat planları, kesitler, görünüşler, vaziyet planları, yerleşim planları ve detay/uygulama çizimleri—teslim veya uygulama (inşaat) dokümantasyonu için hazır. İhtiyacınız olan her ölçekte çalışabilirim.
X
Müsait Hizmet Verenlerden 4 CAD Çizim Fiyat Teklifi Al, Karşılaştır.
1170 CAD Çizim Uzmanı hizmet vermeye hazır.
BAŞLA
Teklif al >
4 CAD Çizim Fiyat Teklifi Al