HİZMET VER
Armut
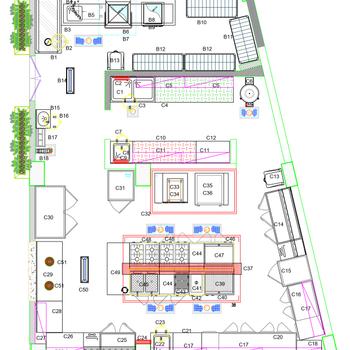
Endüstriyel Mutfak Tasarımı
İstanbul
Çekmeköy
Serhat Toprakçı
Endüstriyel Mutfak Tasarımı
·
4 aydır üye
İstanbul
Çekmeköy
BAŞLA
Müşterilerinin Yorumları
Yorumları görmek için teklif alın.
Güvenlik Kontrolleri
Geçerli Cep Telefonu
Endüstriyel mutfak alanında tasarımcı ve proje yöneticisi olarak çalışıyorum ayrıca drone ile video ve fotoğraf çekimleri yapıyorum
X
Müsait Hizmet Verenlerden 4 Endüstriyel Mutfak Tasarımı Fiyat Teklifi Al, Karşılaştır.
225 Endüstriyel Mutfak Tasarımı Firması hizmet vermeye hazır.
BAŞLA
Teklif al >
4 Endüstriyel Mutfak Tasarımı Fiyat Teklifi Al