HİZMET VER
Armut
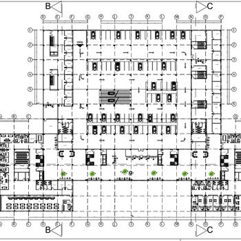
Plan Kesit Görünüş Çizimi
İstanbul
Ataşehir
Sidra Jadid
Plan Kesit Görünüş Çizimi
·
3 aydır üye
İstanbul
Ataşehir
BAŞLA
Müşterilerinin Yorumları
Yorumları görmek için teklif alın.
Güvenlik Kontrolleri
Geçerli Cep Telefonu
Merhaba, Ben Sidra Jadid, kullanıcı odaklı, estetik ve işlevsel mekânlar üretmeyi hedefleyen bir mimarım. Konut, ofis ve ticari alan projelerinde; tasarım sürecinden uygulama detaylarına kadar her aşamada profesyonel destek sunuyorum. Her projeye, mekânın ihtiyaçlarını ve kullanıcı beklentilerini doğru analiz ederek başlarım. Amacım yalnızca görsel olarak güçlü değil, aynı zamanda sürdürülebilir, uygulanabilir ve uzun ömürlü çözümler üretmektir. Tasarım sürecinde müşterilerimle şeffaf ve sürekli iletişim kurarak, hayal edilen mekânı birlikte şekillendirmeye önem veririm. Zamanında teslim, detaylara özen ve güvenilir çalışma prensibi benim için önceliklidir.
X
Müsait Hizmet Verenlerden 4 Plan Kesit Görünüş Çizimi Fiyat Teklifi Al, Karşılaştır.
884 Plan Kesit Görünüş Çizim Uzmanı hizmet vermeye hazır.
BAŞLA
Teklif al >
4 Plan Kesit Görünüş Çizimi Fiyat Teklifi Al