HİZMET VER
Armut
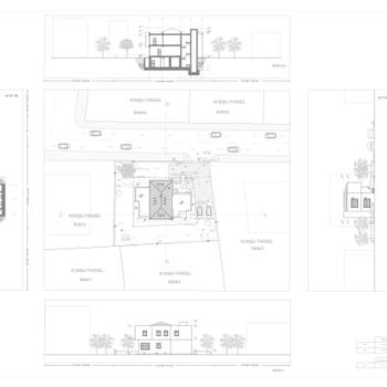
Plan Kesit Görünüş Çizimi
Antalya
Manavgat
Yoncagül Küçükkaya
Plan Kesit Görünüş Çizimi
·
1 yıldır üye
Antalya
Manavgat
BAŞLA
Müşterilerinin Yorumları
Yorumları görmek için teklif alın.
Güvenlik Kontrolleri
Geçerli Cep Telefonu
Akdeniz Üniversitesi Mimarlık bölümü 2024 mezunuyum. Ruhsat projeleri, teknik çizimler (kesit, görünüş, plan vb.), pafta hazırlayabiliyorum. Aktif olarak autocad, revit, photoshop, sketchup, indesign ve lumion kullanıyorum.
X
Müsait Hizmet Verenlerden 4 Plan Kesit Görünüş Çizimi Fiyat Teklifi Al, Karşılaştır.
896 Plan Kesit Görünüş Çizim Uzmanı hizmet vermeye hazır.
BAŞLA
Teklif al >
4 Plan Kesit Görünüş Çizimi Fiyat Teklifi Al