HİZMET VER
Armut
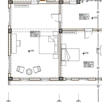
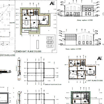
Plan Kesit Görünüş Çizimi
Van
İpekyolu
Yusuf Kısa
Plan Kesit Görünüş Çizimi
·
2 yıldır üye
Van
İpekyolu
BAŞLA
Müşterilerinin Yorumları
Yorumları görmek için teklif alın.
Güvenlik Kontrolleri
Geçerli Cep Telefonu
Kuruluş / İşe Başlama Yılı
2021
uzun süredir mimari proje ve modelleme alanında hizmet vermekteyim.bu konuda pek çok iş üstlendim.sizlerlede çalışmak dileğiyle
X
Müsait Hizmet Verenlerden 4 Plan Kesit Görünüş Çizimi Fiyat Teklifi Al, Karşılaştır.
891 Plan Kesit Görünüş Çizim Uzmanı hizmet vermeye hazır.
BAŞLA
Teklif al >
4 Plan Kesit Görünüş Çizimi Fiyat Teklifi Al