HİZMET VER
Armut
Mimari Proje Çizimi
Sakarya
Sapanca
Emir Demir
Mimari Proje Çizimi
·
3 aydır üye
Sakarya
Sapanca
BAŞLA
Müşterilerinin Yorumları
Yorumları görmek için teklif alın.
Güvenlik Kontrolleri
Geçerli Cep Telefonu
Geçerli Email Address
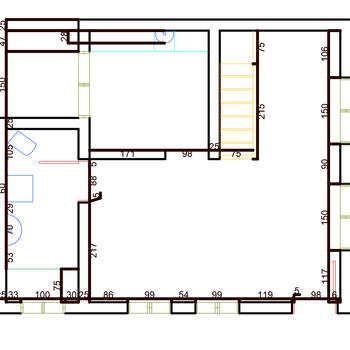
AutoCAD 2D Cizim ve Teknik Proje Hizmetleri AutoCAD kullanarak 2D teknik cizim mimari plan kesit gorunus ve proje duzenleme hizmetleri sunuyorum PDF veya gorsel JPG PNG dosyalarinizi DWG formatina ceviriyor mevcut projelerde revizyon olculendirme ve teknik duzenlemeleri titizlikle gerceklestiriyorum Sundugum Hizmetler 2D AutoCAD teknik cizimleri Mimari plan kesit ve gorunus cizimleri PDF JPG DWG donusturme Teknik cizim duzenleme ve revizyon Katman layer olcek ve olcu duzenlemeleri Avantajlarim Mesajlara hizli geri donus Zamaninda teslim Temiz anlasilir ve yonetmeliklere uygun cizimler
X
Müsait Hizmet Verenlerden 5 Mimari Proje Çizimi Fiyat Teklifi Al, Karşılaştır.
4767 Mimari Proje Çizimi Firması hizmet vermeye hazır.
BAŞLA
Teklif al >
5 Mimari Proje Çizimi Fiyat Teklifi Al